999 111 9590 LLámanos!!
H&M Bienes Raíces
H&M Bienes Raíces

Propiedad en Venta

Casa en venta Conkal

Vendido

Conkal

*Precios sujetos a cambios sin previo aviso

$2,275,000.00 MXN


Casas en venta Conkal
Precio de venta $2,275,000.00
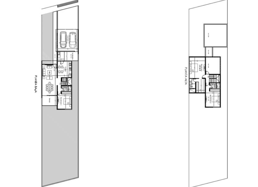
PLANTA BAJA
• ENTRADA PARA 4 AUTOS.
• SALA COMEDOR AMPLIO.
• COCINA AMPLIA CON MESETA DE GRANITO Y ALACENA.
• 1 RECAMARA.
• 1 BAÑO COMPLETO.
• AREA DE LAVADO TECHADO.
PLANTA ALTA
• 1 RECAMARA PRINCIPAL CON CLOSET VESTIDOR Y BAÑO COMPLETO.
• 1 RECAMARA CON BAÑO COMPLETO.
• ACCESO A TERRAZA.


 PISO PORCELANATO, ACABADO INTERIOR EN YESO, COCINA CON GRANITO Y GAVETEROS, BARDAS PERIMETRALES 2 MTS ALTURA.
• PISO CONCRETO PULIDO EN COCHERA,TECHADA PARA DOS AUTOS Y OTROS DOS AUTOS SIN TECHO.

Detalles de la casa.
•MUEBLES DE BAÑO: INODOROS ONEPIECE, MESETAS MARMOL EN LAVAMANOS.
• CISTERNA.
NO INCLUYE: CANCELES EN BAÑOS, ACCESORIOS DE BAÑO, JARDIN, CLOSETS VESTIDOS, BARANDAL EN ESCALERA, REJA,TANQUE ESTACIONARIO, CALENTADOR.

Detalles de la propiedad.
• TIPO DE TERRENO: IRREGULAR 
• CUENTA CON: LUZ SUBTERRANEA Y AGUA POTABLE.
• FORMA DE PAGO: CONTADO, CREDITO BANCARIO, INFONAVIT.
• CONSTRUCCION: 196 M2
*TERRENO: 350 M2

Ubicación: Mérida Yucatán


Agente

Maritza Horta


    ID
V26-032020
Habitaciones
3
Baños
3
Terreno
350m2
Estacionamiento
4
Antiguedad
Nuevo
Casa


Contáctame